网站首页
关于我们
新闻资讯
产品展示
华体会网页版(中国)
桥梁模具
箱涵管廊
路沿石模具
路沿石华体会网页版(中国)
路沿石塑料模具
U型槽模具
U形槽华体会网页版(中国)
U形槽塑料模具
隔离墩模具
隔离墩华体会网页版(中国)
化粪池模具
化粪池华体会网页版(中国)
检查井模具
检查井华体会网页版(中国)
井盖模具
井盖华体会网页版(中国)
井盖塑料模具
电力盖板模具
电力盖板华体会网页版(中国)
电力盖板塑料模具
高铁、铁路工程模具
高铁、铁路工程华体会网页版(中国)
高铁、铁路工程塑料模具
护坡模具
护坡华体会网页版(中国)
护坡塑料模具
花墙砖模具
花墙砖华体会网页版(中国)
花墙砖塑料模具
塑料模具
防撞墙模具
挂篮模板
风电基础模板
模具世界
模具加工
模具制品
模具公司
模具工业
华体会网页版(中国)
模具加工
发布时间:2020-03-19 06:16:25
CONTACT
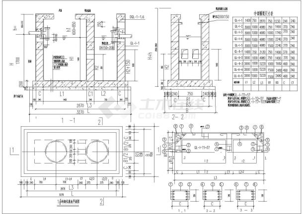
化粪池模具厂:某小区的化粪池施工结构图
化粪池结构图1
化粪池结构图2
化粪池结构图3
化粪池结构图4
上一篇:
隔离墩模具厂:隔离墩的安装工具和方法介绍
下一篇:
[化粪池模具厂]家用化粪池的标准尺寸
热门新闻
| NEWS
翰轩钢模板厂高层召开了目···
风电基础模板的拼装及每平···
PC预制墙板模具的生产厂···
预制阳台板模具在建筑中的···
世界杯在线
|
开云网页版
|
开云足球(中国)官方网站
|
华体会注册大厅
|
华体会体育
|
Huatihui官方网站
|
江南官方网站_江南jiangnan(中国)
|
HTH华体会体育登录入口hth.com
|
博鱼买球
|